ДОМ В С/Х ЗАРЯ

.............................................
ПОСТРОЕН В 2022
▼ ДЕТАЛИ СТРОЙКИ ▼
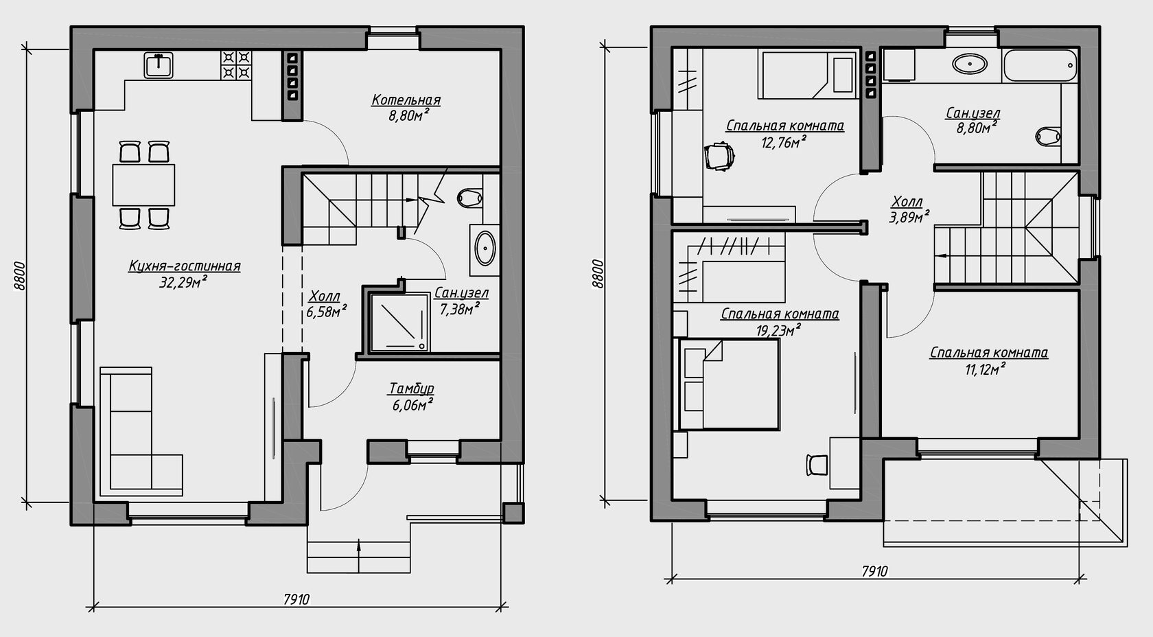
135 КВ.М
3 СПАЛЬНИ
2 ЭТАЖА
Адрес: 
Пензенский район, Пензенская область, ​с/х Заря, ул. Таганцева 12
Были проведены инженерно-геологические изыскания

Далее была произведена разметка фундамента и подготовлена траншея по проектным данным и возведен ленточный фундамент с буро-наливными сваями (диаметр сваи - 30 см, высота сваи - 200 см, расстояние между сваями до 180 см. Лента с каркасом из арматуры 12мм, бетон М250, шириной 50 см, высотой 80 см).
ЭТАПЫ РЕАЛИЗАЦИИ
ВОЗВЕДЕНИЕ ФУНДАМЕНТА
ЭТАП
1
Строительство одноэтажного каменного дома "под ключ" за 3 месяца в Пензенской области по индивидуальному проекту
Строительство одноэтажного каменного дома "под ключ" за 3 месяца в Пензенской области по индивидуальному проекту
Между плитами перекрытия и фундаментом проложена горизонтальная гидроизоляция (2 слоя рубероида). Цоколь возведен из керамического кирпича марки М-125, предусмотрены продухи подпольной части цоколя. Дополнительно произведено утепление торцов жб плит. Перекрытие первого этажа: железобетонные плиты марки ПБ.
ВОЗВЕДЕНИЕ ЦОКОЛЯ
ЭТАП
2
Строительство одноэтажного каменного дома "под ключ" за 3 месяца в Пензенской области по индивидуальному проекту
Строительство одноэтажного каменного дома "под ключ" за 3 месяца в Пензенской области по индивидуальному проекту
Кладка стен из газобетонного блока и облицовочного кирпича согласно проекту. Внутренняя кладка стен 300 мм. Перевязка облицовочной и внутренней стены произведено с помощью сетки 3 мм (ячейка 10х10см) каждый 6 ряд облицовочной кладки.
Высота потолка первого этажа 300 см (с учетом стяжки).

Несущие межкомнатные перегородки выполнены из керамического кирпича. Не несущие стены возведены из газобетонных блоков 8 см.
Устроен армированный пояс из керамического кирпича с усиленным армированием.

Перекрытие первого этажа: железобетонные плиты перекрыти марки ПБ.

Вставлены двухкамерные оконные конструкции (профиль 70 мм, фурнитура аксор во внешней ламинации в цвет крыши).
ВОЗВЕДЕНИЕ СТЕН
ЭТАП
3
Установлены деревянные балки перекрытия и стропильная система (доска 50х200 мм, шаг 650-800 мм). Деревянная обрешётка крыши выполнена из досок 25х150 мм, шаг 150 мм, обработана огнезащитным составом. На пароизоляцию уложена контробрешетка
ВОЗВЕДЕНИЕ КРЫШИ
ЭТАП
4
Крыша покрыта битумной черепицей на основание из OSB плит, карнизы из профлиста, смонтирована водосточная система

Потолок утеплен по балкам на 150мм минеральными плитами
В доме выполнена качественная черновая отделка: стяжка пола, штукатурка, электроразводка, система отопления и теплого пола, разводка водопровода и канализации.
Подведены все коммуникации:
  • электричество
  • центральное водоснабжение
  • выгребная яма
  • газ
Запишитесь на экскурсию и убедитесь в качестве работ!
Заедем за вами в удобное время и покажем все интересующие объекты.
ЛУЧШИЙ СПОСОБ ПРОВЕРИТЬ КАЧЕСТВО
РАБОТ - ПОБЫВАТЬ НА ОБЪЕКТЕ
Made on
Tilda